物件紹介
売りアパート
丸亀市田村町
価格御成約済
- 交通/JR予讃線/讃岐塩屋 徒歩31分
- 築年月/1997年8月
- 建物面積/450.46㎡(約136.26坪)
- 土地面積/公簿 923.56㎡(約279.37坪)
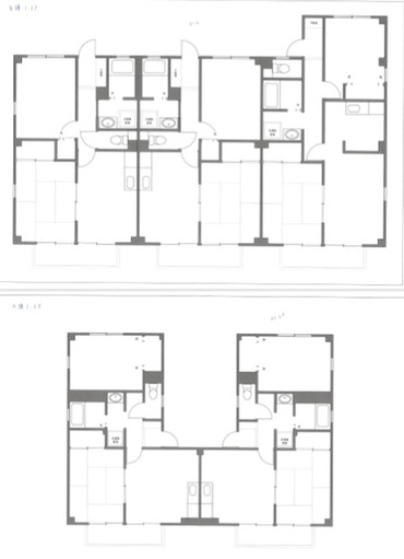
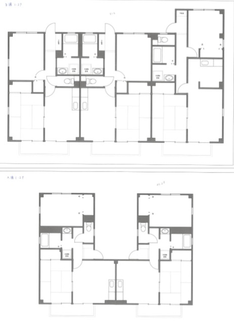
- 間取り/A棟(2DK) B棟(2DK ・ 2LDK)
所在地
丸亀市田村町
交通
JR予讃線/讃岐塩屋 徒歩31分
価格
御成約済
間取り
A棟(2DK) B棟(2DK ・ 2LDK)
土地面積
公簿 923.56㎡(約279.37坪)
建物面積
450.46㎡(約136.26坪)
築年月
1997年8月
ライフライン
電気・プロパンガス・上水道・下水道
建物名
丸亀市田村町アパート A棟B棟
間取
A棟(2DK) B棟(2DK ・ 2LDK)
建物面積
450.46㎡
土地面積
公簿 923.56㎡
私道負担面積
なし
築年月
1997年8月
階建/階
2階建
リフォーム履歴
2018年10月 屋根・外壁塗装工事完了。
駐車場
あり
建物構造
重量鉄骨造
土地権利
所有権
都市計画
非線引区域
用途地域
第一種低層住居専用地域
接道状況
北側 幅員約5m 1項5号道路
建蔽率
60%
容積率
100%
地目
宅地
地勢
平坦
現況
賃貸中
引渡し
相談
取引態様
媒介


















