物件紹介
売り既存マンション
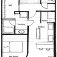
- 1LDK(59.15㎡)(壁芯)
価格御成約済
- 交通/高松琴平電鉄琴平線 栗林公園駅 徒歩5分
- 築年月/1978年10月
- 建物面積/59.15㎡(約17.89坪)
- バルコニー/9.12㎡
- 間取り/1LDK
- その他/リノベーション物件
出ました、大人の女性が創った渾身のリノベーション物件です。細かいところが「はっはぁ~ん、こういうところね、はいはい」という感じで、こだわりがぎっしり詰まった物件です。場所は桜町ですから飲み会があっても余裕で帰れます。街中の通勤も楽勝です。仕事帰りは、セブンイレブンかコープでお買い物OKですね。玄関入ってすぐのところにウォークスルークローゼットがあります。コートをさっと脱いで、すぐに洗面でメイクを落として、浴室へ突入できる完璧な動線でございます。あっ、これはシャワーの場合ね(笑)。室内は、無垢フローリング、壁には珪藻土と一部輸入壁紙を貼っています。なんせ「わたしの部屋よ」と自慢したくなるオシャレさです。女性の一人暮らしにぴったりサイズです。南側には建物がなく、採光・通風に優れた心地よいお部屋です。
所在地
-
交通
高松琴平電鉄琴平線 栗林公園駅 徒歩5分
価格
御成約済
間取り
1LDK
建物面積
59.15㎡(約17.89坪)
バルコニー
9.12㎡
築年月
1978年10月
設備
システムキッチン、ウォークインクローゼット、バイク置き場、収納スペース、室内洗濯機置場、モニター付インターホン、ディンプルキー、ダブルロックドア、IHクッキングヒーター、エレベーター2基以上、給湯、駐輪場、人感センサー付照明、ダウンライト、間接照明、照明器具、ベッド、BS端子、温水洗浄便座
主要採光面
南向き
リフォーム履歴
■水回り:2017年12月
キッチン、浴室、トイレ、洗面所、給排水管
■内装:2017年12月
内装全面(床・壁・天井・建具)
壁、天井は珪藻土、一部クロス 床は無垢フローリング一部クッションフロアー、フロアタイル 無垢の建具
※実施年月は最も古い履歴を表示ライフライン
電気・上水道・下水道
建物名
大人の女性が創った大人の女性のための街中マンション
間取
1LDK
建物面積
59.15㎡(約17.89坪)
バルコニー
9.12㎡
築年月
1978年10月
階建/階
10階建の5階(509)
駐車場
近隣 11,000円/1台
建物構造
SRC
土地権利
所有権
敷地面積
3,688.82m²
管理費
7,000円
修繕積立金
6,000円
建物名
桜町マンション
総戸数
137戸
駐輪場
有(無料)
バイク置場
有(無料)
管理形態
自主管理
現況
空家
引渡し
即時
取引態様
媒介

















