物件紹介
売り中古マンション
高松市松縄町 3LDK(72.01㎡)(壁芯)
価格御成約済
- 交通/高松琴平電鉄長尾線 林道駅徒歩12分
- 築年月/2014年7月
- 建物面積/72.01㎡(約21.78坪)
- バルコニー/11.39㎡
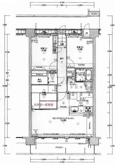
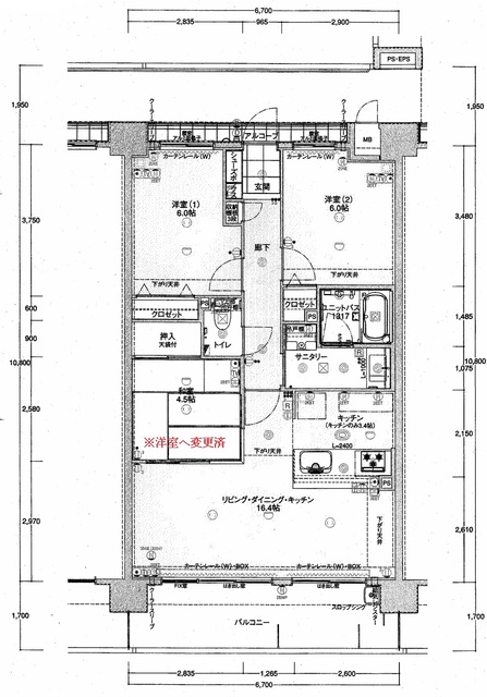
- 間取り/3LDK
- その他/ペット可
所在地
高松市松縄町
交通
高松琴平電鉄長尾線 林道駅徒歩12分
価格
御成約済
間取り
3LDK
建物面積
72.01㎡(約21.78坪)
バルコニー
11.39㎡
築年月
2014年7月
設備
オートバス 追焚機能 浴室乾燥機 温水洗浄便座 シャワー付洗面化粧台 IHクッキングヒーター カウンターキッチン システムキッチン グリル 食器洗浄乾燥機 収納スペース 全居室収納 クローゼット ダウンライト 室内洗濯機置場 都市ガス 複層ガラス 全居室フローリング アルコーブ BS端子 インターネット対応 光ファイバー ダブルロックドア オートロック モニタ付オートロック モニタ付インターホン 防犯カメラ 火災警報器(報知機) エレベーター 宅配BOX ペット用施設 来客用駐車場
主要採光面
南向き
リフォーム履歴
無し
ライフライン
電気・上水道・下水道・都市ガス(給湯)・コンロはIHへ交換済
建物名
アルファステイツ松縄レインボー通りⅣ
間取
3LDK
建物面積
72.01㎡(約21.78坪)
バルコニー
11.39㎡
築年月
2014年7月
階建/階
7階建の7階 最上階
駐車場
有 5,000円/月
建物構造
RC
土地権利
敷地権所有権
管理費
11,000円/月
修繕積立金
8,280円
建物名
アルファステイツ松縄レインボー通りⅣ
総戸数
30戸
管理形態
全部委託 日勤管理(あなぶきハウジングサービス)
現況
御成約済
引渡し
御成約済
取引態様
媒介











