物件紹介
売り中古マンション
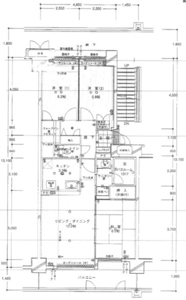
高松市木太町2747 3LDK(75.94㎡)(壁芯)
価格御成約済
- 交通/高松琴平電鉄志度線
- 築年月/1999年5月
- 建物面積/3LDK(75.94㎡)(壁芯)
- バルコニー/南向き
- 間取り/3LDK
- その他/-
所在地
高松市木太町2747
交通
高松琴平電鉄志度線 春日川駅 徒歩8分
価格
御成約済
間取り
3LDK
建物面積
3LDK(75.94㎡)(壁芯)
バルコニー
南向き
築年月
1999年5月
設備
オートバス、追焚機能、シャワー付洗面化粧台、温水洗浄便座、カウンターキッチン、システムキッチン、3口以上コンロ、モニター付オートロック、全居室収納、ウォークインクローゼット、エアコン2台以上、バイク置き場、収納スペース、室内洗濯機置場、オートロック、都市ガス、駐輪場、照明器具、インターネット対応、光ファイバー、ケーブルTV、BS端子、宅配BOX、エレベーター
主要採光面
南向き
ライフライン
電気・上水道・都市ガス
建物名
アルファステイツ木太八番館
間取
3LDK
建物面積
3LDK(75.94㎡)(壁芯)
バルコニー
南向き
築年月
1999年5月
階建/階
10階建の10階
駐輪場
有り
建物構造
RC
土地権利
所有権
敷地面積
2,278.14m²
管理費
-円
修繕積立金
-円
駐車場
有り -円
総戸数
54戸
管理形態
全部委託・日勤管理
現況
空家
引渡し
即時
取引態様
媒介



















