物件紹介
売り新築住宅
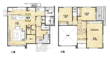
高松市香西東町 3LDK(113.44㎡)
価格御成約済
- 交通/JR予讃線 香西 徒歩13分
- 築年月/2023年3月
- 土地面積/公簿 177.91㎡(53.81坪)
- 建物面積/113.44 ㎡(34.31 坪)
- 間取り/3LDK
所在地
香川県高松市香西東町
交通
JR予讃線 香西 徒歩13分
価格
御成約済
間取り
3LDK
土地面積
公簿 177.91㎡(53.81坪)
建物面積
113.44 ㎡(34.31 坪)
築年月
2023年3月
設備
浴室暖房、浴室乾燥機、オートバス、追焚機能、シャワー付洗面化粧台、温水洗浄便座、タンクレストイレ、トイレ2ヶ所 アイランドキッチン、カウンターキッチン、システムキッチン、食器洗浄乾燥機、IHクッキングヒーター、3口以上コンロ、グリル 全居室収納、ウォークインクローゼット、EV車充電設備、シューズインクローゼット、クローゼット、床下収納、モニター付インターホン、ディンプルキー、ダブルロックドア、複層ガラス、省エネ給湯器、全居室フローリング、室内物干し、上水道、下水道、電気、エアコン、人感センサー付照明、ダウンライト、間接照明、照明器具、火災警報器(報知機)
瑕疵保険・保証
メーカー保証
備考
前面道路5.2m
ライフライン
電気・上水道・下水道
建物名
Risoing モデルハウス
間取
3LDK(洋 10.5・6・6 LDK 23)
土地面積
公簿 177.91㎡(53.81坪)
建物面積
113.44 ㎡(34.31 坪)
私道負担面積
なし
築年月
2023年3月
階建/階
2階建
リフォーム履歴
なし
リノベーション履歴
なし
駐車場
あり(普通車3台駐車可能)
建物構造
木造
土地権利
所有権
都市計画
非線引区域
用途地域
指定無し
接道状況
5.2m 開発道路
建蔽率
60%
容積率
200%
地目
宅地
地勢
平坦
セットバック
なし
現況
御成約済
引渡し
御成約済
取引態様
御成約済











