物件紹介
売り中古住宅
高松市屋島東町 4LDK(120.05㎡)
価格御成約済
- 交通/高松琴平電鉄志度線 八栗駅 徒歩37分
- 築年月/2005年1月
- 建物面積/120.05㎡(約36.31坪)
- 土地面積/公簿 231.30㎡(約69.96坪)
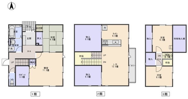
- 間取り/4LDK
- その他/ミサワホームの蔵
所在地
-
交通
高松琴平電鉄志度線 八栗駅 徒歩37分
その他交通
高松市内より自動車で約20分
価格
御成約済
間取り
4LDK
土地面積
公簿 231.30㎡(約69.96坪)
建物面積
120.05㎡(約36.31坪)
築年月
2005年1月
設備
カウンターキッチン、システムキッチン、全居室収納、ウォークインクローゼット、エアコン2台以上、クローゼット、床下収納、モニター付インターホン、シャッター雨戸、3口以上コンロ、グリル、オートバス、追焚機能、シャワー付洗面化粧台、グルニエ、上水道、プロパンガス、電気、側溝、エアコン、庭、ウッドデッキ、人感センサー付照明、火災警報器(報知機)、温水洗浄便座
インスペクション/瑕疵保険・保証
メーカー保証を承継できます。
備考
6畳・8畳の「蔵」があります。
地盤は杭打設工事済。防蟻処理。海が見え、夏には庵治の花火を見ることができます。夏は涼しいです。
施工会社:ミサワホーム四国株式会社
修繕・点検の記録ありライフライン
電気・プロパンガス・上水道・合併浄化槽
建物名
海が見えるミサワホームの蔵があるお家
間取
4LDK(和 6 洋 11.5 洋6 洋6 LDK 18)
建物面積
120.05㎡
土地面積
公簿 231.30㎡
私道負担面積
なし
築年月
2005年1月
階建/階
3階建
リフォーム履歴
なし
リノベーション履歴
なし
駐車場
あり(普通車2台駐車可能)
建物構造
木造
土地権利
所有権
都市計画
非線引区域
用途地域
無指定
接道状況
北 5.0m 公道 接面6.5m ・東 4.0m 公道 接面24.7m ・二方道路
建蔽率
50%
容積率
80%
地目
宅地
地勢
雛段
セットバック
なし
現況
空家
引渡し
即時
取引態様
媒介



















