物件紹介
売り新築住宅
高松市六条町 4LDK(106.96㎡)
価格 - 万円
- 交通/ことでん長尾線 水田駅徒歩約16分
- 築年月/2020年4月
- 土地面積/公簿 184.51㎡(55.81坪)
- 建物面積/106.96 ㎡(32.35 坪)
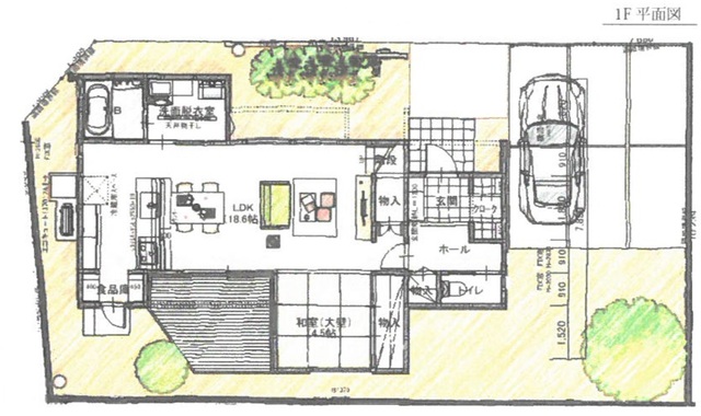
- 間取り/4LDK
近年、大きく開発が進んだ人気の六条町です。 さらにはサンシャイン通りからの計画道路が開通する予定ですので、 大型商業施設も建築中です。 ますます利便性がよくなってくるエリアとなります。 中央インターもすぐ、レインボー通りへのアクセスも良し。 このお家の最大の特徴は、 減震ブレーキ装置付きにて、800galの地震エネルギーを約1/4の400gal程度まで、 抑える実験に成功しており、 地震の揺れを大幅に抑える点です。 さらには、家にマスクをしたような熱交換換気システムおいて、 花粉は99.8%除去、PM2.5は98%除去をします。 ゆえに、家族の健康を守ってくれます。 また、専属のインテリアコーディネーターによるセンスで、 全体の外・中を仕上げております。
所在地
香川県高松市六条町
交通
ことでん長尾線 水田駅徒歩約16分
価格
- 万円
間取り
4LDK
土地面積
公簿 184.51㎡(55.81坪)
建物面積
106.96 ㎡(32.35 坪)
築年月
2020年4月
設備
オートバス バス1坪以上 追焚機能 浴室暖房 浴室乾燥機 トイレ2ヶ所 タンクレストイレ 温水洗浄便座 シャワー付洗面化粧台 3口以上コンロ IHクッキングヒーター カウンターキッチン システムキッチン グリル 食器洗浄乾燥機 浄水器 全居室収納 クローゼット ウォークインクローゼット シューズIC 照明器具 間接照明 人感センサー付照明 ダウンライト 室内物干し 省エネ給湯器 複層ガラス 電気 上水道 浄化槽 エアコン ダブルロックドア モニタ付インターホン ディンプルキー 火災警報器(報知機) 庭 駐車場2台分 オール電化 24時間換気システム 外壁サイディング 隣接建物距離2m以上 前面棟無 整形地 閑静な住宅街 建築確認完了検査済証 新築時・増改築時の設計図書
瑕疵保険・保証
メーカー保証
備考
前面道路6.0m
ライフライン
電気・上水道・合併浄化槽
建物名
減震ブレーキ装置・プレミアム換気(花粉とPM2.5を除去)付きデザイン住宅
間取
4LDK(和4.5 洋室5.1 洋室5.1 主寝室7.0 LDK18.7)
土地面積
公簿 184.51㎡(55.81坪)
建物面積
106.96 ㎡(32.35 坪)
私道負担面積
なし
築年月
2020年4月
階建/階
2階建
リフォーム履歴
なし
リノベーション履歴
なし
駐車場
あり(普通車2台駐車可能)
建物構造
木造
土地権利
所有権
都市計画
非線引区域
用途地域
指定無し
接道状況
6.0m 開発道路
建蔽率
60%
容積率
100%
地目
宅地
地勢
平坦
セットバック
なし
現況
完成済
引渡し
即時
取引態様
媒介


















