物件紹介
売り新築住宅
高松市新田町甲 4LDK(114.79㎡)
価格御成約済
- 交通/JR高徳線 屋島 徒歩16分
- 築年月/2021年5月
- 土地面積/公簿 203.38㎡(61.52坪)
- 建物面積/114.79 ㎡(34.72 坪)
- 間取り/4LDK
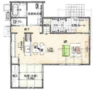
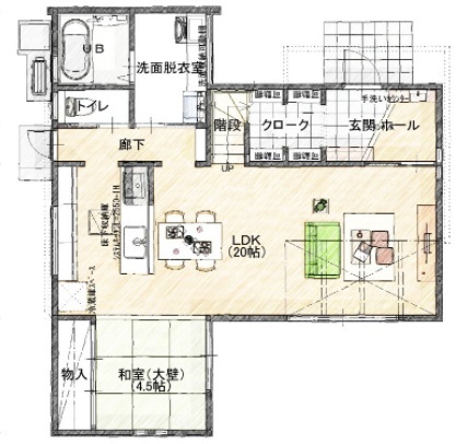
このあたりもずいぶんと開発が進んだエリアです。 新しいお家が建ち並んでいます。 高松市民ですと、やはり車は必須の生活スタイルとなりまして、ちょっと走れば屋島エリアですし、ちょっと志度栗林線へ出れば中心街へと。 10号線附近にも、たくさん商業店舗がありますね。 個人的には、QUITさんがあるので、ランチ利用、晩酌のアテのデリを買いにすぐに行けるのが嬉しい。 立地は中学校のすぐ南側です。この中学校附近には、やはり多くの新しいお家が完成しております。 駐車スペースにはストレスを感じることはないでしょう。 また、リビングには吹抜けがあるので、開放感があります。吹抜けの上には、小さい窓がありますので、「ごはんできたよ~」と声をかけれますね(笑)。 主寝室には、ワークスペースがありますので、最近のテレワークもできるのかなと。
所在地
香川県高松市新田町甲
交通
JR高徳線 屋島 徒歩16分
価格
御成約済
間取り
4LDK
土地面積
公簿 203.38㎡(61.52坪)
建物面積
114.79 ㎡(34.72 坪)
築年月
2021年5月
設備
オートバス バス1坪以上 追焚機能 浴室暖房 浴室乾燥機 トイレ2ヶ所 温水洗浄便座 シャワー付洗面化粧台 3口以上コンロ IHクッキングヒーター カウンターキッチン システムキッチン グリル 食器洗浄乾燥機 全居室収納 クローゼット ウォークインクローゼット シューズIC 床下収納 照明器具 人感センサー付照明 省エネ給湯器 複層ガラス 電気 上水道 下水道 浄化槽 エアコン ダブルロックドア モニタ付インターホン ディンプルキー 火災警報器(報知機) 庭 駐車場3台分
瑕疵保険・保証
メーカー保証
備考
前面道路東側5.1m 北側5.1m
ライフライン
電気・上水道・浄化槽
建物名
吹抜けのある家
間取
4LDK(和 4.5 洋 5.7・5.7・7.3 LDK 20 )
土地面積
公簿 203.38㎡(61.52坪)
建物面積
114.79 ㎡(34.72 坪)
私道負担面積
なし
築年月
2021年5月
階建/階
2階建
リフォーム履歴
なし
リノベーション履歴
なし
駐車場
あり(普通車3台駐車可能)
建物構造
木造
土地権利
所有権
都市計画
非線引区域
用途地域
指定無し
接道状況
5.1m 開発道路
建蔽率
60%
容積率
100%
地目
宅地
地勢
平坦
セットバック
なし
現況
御成約済
引渡し
即時
取引態様
媒介

















