物件紹介
売り中古事務所兼住居
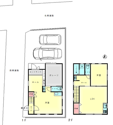
坂出市福江町2丁目696-2 2LDK
価格1,580万円
- 交通/JR予讃線 坂出 徒歩17分
- 築年月/2022年3月
- 土地面積/公簿 112.26㎡(33.95坪)
- 建物面積/86.94㎡ (26.29坪)
- 間取り/2LDK
所在地
坂出市福江町2丁目696-2
交通
JR予讃線 坂出 徒歩17分
価格
1,580万円
間取り
2LDK
土地面積
公簿 112.26㎡(33.95坪)
建物面積
86.94㎡ (26.29坪)
築年月
2022年3月
設備
シャワールーム トイレ2ヶ所 オープンキッチン 室内洗濯機置場 給湯 エアコン 駐車場2台分
ライフライン
電気 水道 下水道
備考
-
建物名
事務所兼住居 坂出市福江町
間取
2SLDK
土地面積
公簿 112.26㎡(33.95坪)
建物面積
86.94㎡ (26.29坪)
私道負担面積
なし
築年月
2022年3月
階建/階
2階建
駐車場
有
建物構造
木造合金メッキ鋼板ぶき2階建
土地権利
所有権
都市計画
区域内
用途地域
1種低層
接道状況
北側一項一号道路(坂出市道)、西側法外
建蔽率
60%
容積率
100%
地目
宅地
地勢
平坦
現況
空家
引渡し
即時
取引態様
媒介










