物件紹介
売り中古住宅
木田郡三木町下高岡 4LDK(127.01㎡)
価格御成約済
- 交通/高松琴平電鉄長尾線 白山駅 徒歩37分
- 築年月/2004年3月
- 土地面積/公簿 221.63㎡(67.04坪)
- 建物面積/127.01㎡(38.42 坪)
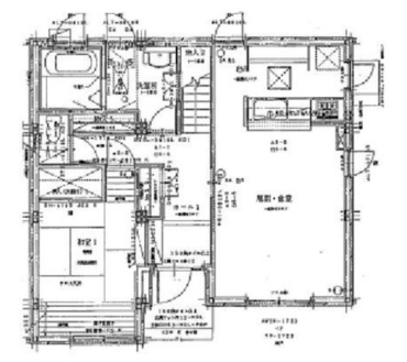
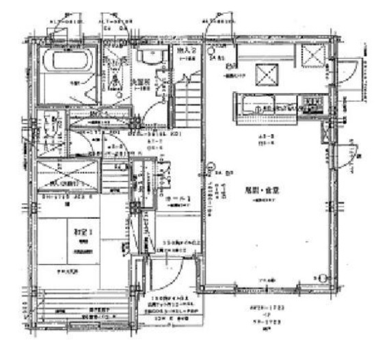
- 間取り/4LDK
大幅価格改定しました!!! 立地は県立三木高校から車で2~3分のところ。正直、公共交通機関は乏しいですので、車利用をして、ちょっと「ガチャガチャ」していないところで、家庭菜園したりして、の~んびりと生活されたい方に適した物件です。なんせのどかでして、鳥のさえずりが聞けるし、南面道路で陽当たりも風通しもバッチリです。前面に建物も無く、とにかく解放感はありますね。さらに建物が大手ハウスメーカーの上級クラスの商品です。超高層ビルで採用される、鉄骨ラーメン構造であり、ほんともう充分でしょ!的な耐震構造です。セラミック外壁は、耐火性・断熱性・耐久性に優れているとのこと。高気密高断熱というやつですね。 あと、こちらの物件、ほんとすぐに住めます!まあ、ちょっとの拭き掃除、掃き掃除はするとしても、手を加えなくて充分にお住まいできます。管理状態が良好です。大切にお住まいされていた証ですね。玄関は収納たくさんあるし、キッチンは食洗器付いてるし、リビングはブラインドとエアコンあるし、お風呂は追い炊きあるし、1F和室は明るく日向ぼっこに最適だし、2Fの子供部屋はもちろん将来的に二人部屋にすることが可能だし、主寝室はなんせ広くて、ウォークインクロゼットもなかなかの収納力だし、あと村上が勝手に「精神と時の部屋」と称している2Fの和室ですが、ここはほんと窓からの自然が見えて、なんというか空気がきれいだし、落ち着きます。ヨガとかリラックス部屋にするといいんじゃないのかなと思うほどです。 最後に特筆すべきは、もちろん車は余裕で駐車できるし、家庭菜園も可能な充分な敷地もあるわけですが、やはりこのシャッター付ガレージですね。窓もついてるし。子育て世代なら、どんどん増えていくモノをちゃっちゃと収納できるし、バイク好きの人なんかには、ここでバイクのメンテナンスしたり、釣り好きにはたーくさん道具を片付けることができます。ご案内は、村上までご予約くださいませ。
所在地
香川県木田郡三木町下高岡
交通
高松琴平電鉄長尾線 白山駅 徒歩37分
価格
御成約済
間取り
4LDK
土地面積
公簿 221.63㎡(67.04坪)
建物面積
127.01㎡(38.42 坪)
築年月
2004年3月
設備
オートバス、追焚機能、シャワー付洗面化粧台、温水洗浄便座、トイレ2ヶ所、カウンターキッチン、システムキッチン、食器洗浄乾燥機、3口以上コンロ、グリル、ウォークインクローゼット、エアコン2台、クローゼット、床下収納、ディンプルキー、ダブルロックドア、シャッター雨戸、複層ガラス、浄化槽、上水道、プロパンガス、電気、庭、照明器具(一部)
保証
メーカー保証承継可能
備考
前面道路6m
ライフライン
電気・上水道・合併浄化槽・プロパンガス
建物名
三木町下高岡 大手ハウスメーカーの中古住宅
間取
4LDK(和 6 和6 洋 10.5 洋室10.5 LDK 15)
土地面積
公簿 221.63㎡(67.04坪)
建物面積
127.01㎡(38.42 坪)
私道負担面積
なし
築年月
2004年3月
階建/階
2階建
リフォーム履歴
なし
リノベーション履歴
なし
駐車場
あり(普通車3台駐車可能)
建物構造
鉄骨造
土地権利
所有権
都市計画
非線引区域
用途地域
無指定
接道状況
南面6m 位置指定道路
建蔽率
70%
容積率
200%
地目
宅地
地勢
平坦
セットバック
なし
現況
御成約済
引渡し
御成約済
取引態様
媒介


















