物件紹介
売り新築住宅
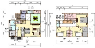
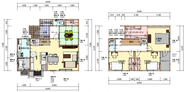
高松市三谷町 4LDK(105.14㎡)
価格御成約済
- 交通/高松琴平電鉄琴平線 仏生山駅 徒歩26分
- 築年月/2018年3月
- 土地面積/公簿 165.49 ㎡(50.06 坪)
- 建物面積/105.14 ㎡(31.80 坪)
- 間取り/4LDK
所在地
香川県高松市三谷町
交通
高松琴平電鉄琴平線 仏生山駅 徒歩26分
価格
-万円
間取り
4LDK
土地面積
公簿 165.49 ㎡(50.06 坪)
建物面積
105.14 ㎡(31.80 坪)
築年月
2018年3月
設備
照明器具、カーテン、カウンターキッチン、システムキッチン、全居室収納、ウォークインクローゼット、クローゼット、モニター付インターホン、3口以上コンロ、グリル、オートバス、追焚機能、シャワー付洗面化粧台、上水道、電気、側溝、火災警報器(報知機)、温水洗浄便座
インスペクション/瑕疵保険・保証
メーカー保証
備考
前面道路6m
ライフライン
電気・上水道・合併浄化槽
建物名
三谷町 新築住宅 No.12
間取
4LDK(和4.5 子供室5.2 子供室5.2 主寝室7.0 LDK15.7)
土地面積
公簿 165.49 ㎡(50.06 坪)
建物面積
105.14 ㎡(31.80 坪)
私道負担面積
なし
築年月
2018年3月
階建/階
2階建
リフォーム履歴
なし
リノベーション履歴
なし
駐車場
あり(普通車3台駐車可能)
建物構造
木造
土地権利
所有権
都市計画
非線引区域
用途地域
無指定
接道状況
北西6m 開発道路
建蔽率
60%
容積率
100%
地目
宅地
地勢
平坦
セットバック
なし
現況
空家
引渡し
即時
取引態様
媒介



















